Разбивочно-посадочный чертеж озеленения Проект Pin-Up «Благоустройство и озеленение»- это проектная документация на территорию объекта строительства, реконструкции или капитального ремонта, определяющая комплекс мероприятий, направленных на улучшение экологического, санитарного, гигиенического и эстетического состояния городской среды, участка, и предусматривающих один или несколько из следующих видов работ: архитектурно-планировочная организация территории, устройство дорожек и площадок, озеленение, устройство архитектурного освещения, Pin-Up малых архитектурных форм, объектов городского дизайна, рекламы, произведений монументально-декоративного искусства. В состав проекта могут быть включены:
- Генеральный план
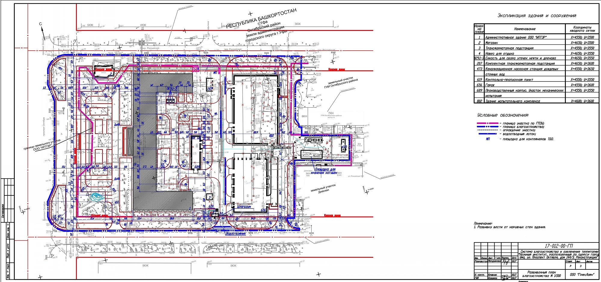
- Разбивочно-посадочный чертеж озеленения

- План озеленения

- Геодезическая съемка
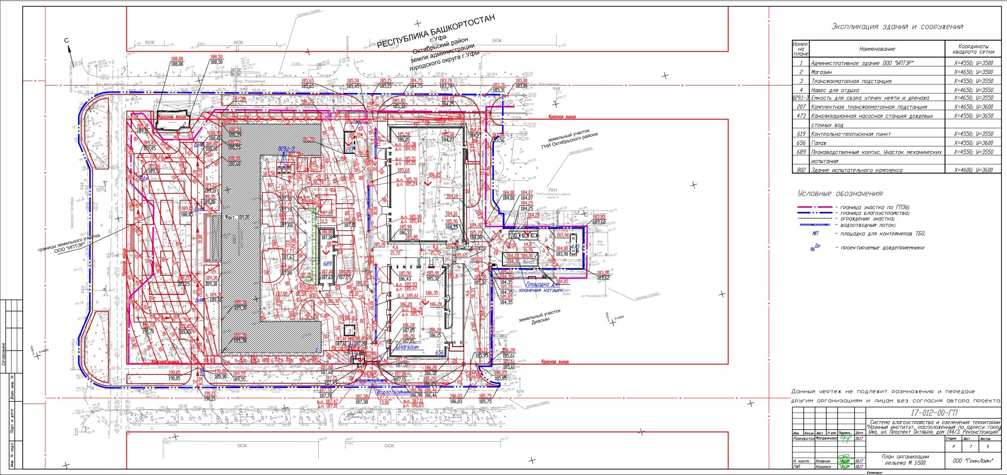
- План организации рельефа и земляных Pin-Up

- План МАФ

- Лист спецификаций для используемого оборудования
- Дендроплан (с ассортиментной ведомостью)

- Планы и состав реконструкции дорожного покрытия( Pin-Up проездов ,тротуаров, дорожек, площадок)

- Pin-Up схема освещения с расстановкой светильников
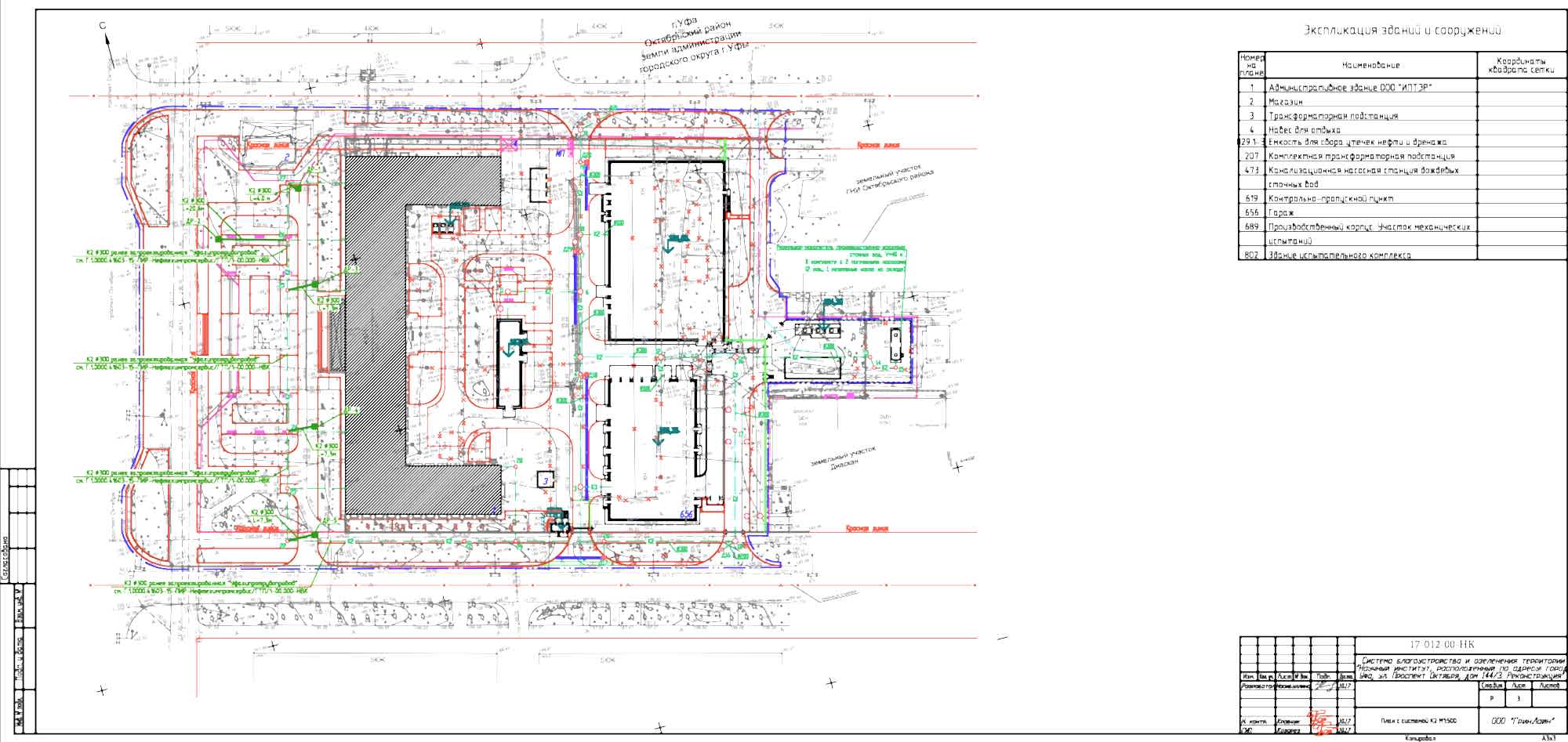
- Система полива и водоотведения

- Работы по Pin-Up единого архитектурного решения по входам в подъезды, по дорожкам, решеткам
- Визуализация 3D

Пояснительная записка.
- Разбивочный планвыполняют с координатной или размерной привязкой.
Строительную геодезическую сетку наносят на весь разбивочный план в виде квадратов со сторонами 10 см. Начало координат принимают в нижнем левом углу листа. Оси строительной Pin-Up сетки обозначают арабскими цифрами, соответствующими числу сотен метров от начала координат, и прописными буквами русского алфавита .Размерную привязку осуществляют от разбивочного базиса.
Разбивочным базисом может быть любая прямая линия, проходящая через две закрепленные на местности точки, которые обозначают прописными буквами русского алфавита. Выполняют размерную привязку координационных осей здания, сооружений к разбивочному базису. Вокруг контура здания, сооружения показывают отмостку и въездные пандусы, наружные лестницы и площадки у входов. На разбивочном плане в части автомобильных дорог наносят и Pin-Up ширину автомобильных дорог; радиусы кривых по кромке проезжей части автомобильных дорог в местах их взаимного пересечения и примыкания. - Проект (раздел) «Цветочное оформление»выполняется при проектировании любой территории благоустройства (парки, сады, скверы, бульвары, дворовые территории и т.д.). Отдельно проекты цветочного оформления выполняются для благоустроенных территорий, в тех местах, где необходимо разнообразить однородный ландшафт, придать территории какие-то определенные цветовые и тематические акценты, или просто украсить территорию.
- Проект (раздел) «Компенсационное озеленение»может являться как частью проекта благоустройства, так и быть отражено в отдельном проекте. Компенсационное озеленение - воспроизводство Pin-Up насаждений взамен утраченных. В случае натуральной формы ( не денежной) компенсационного озеленения определяется участок в том же районе, что и объект строительства, пригодный для создания зеленых насаждений и разрабатывается Проект
